Fertőrákos - beépített tetőter, 2 lakrészes ház eladó

Property image 1
Property image 2
Property image 3
Property image 4
Property image 5
Property image 6
Property image 7
Property image 8
Property image 9
Property image 10
Property image 11
Property image 12
Property image 13
Property image 14

Fertőrákoson 2 lakrészes, tetőtér beépítéses ikerházrész eladó.

A ház két külön bejáratú lakrészből áll, melyek külön villanyórákkal rendelkeznek.

 

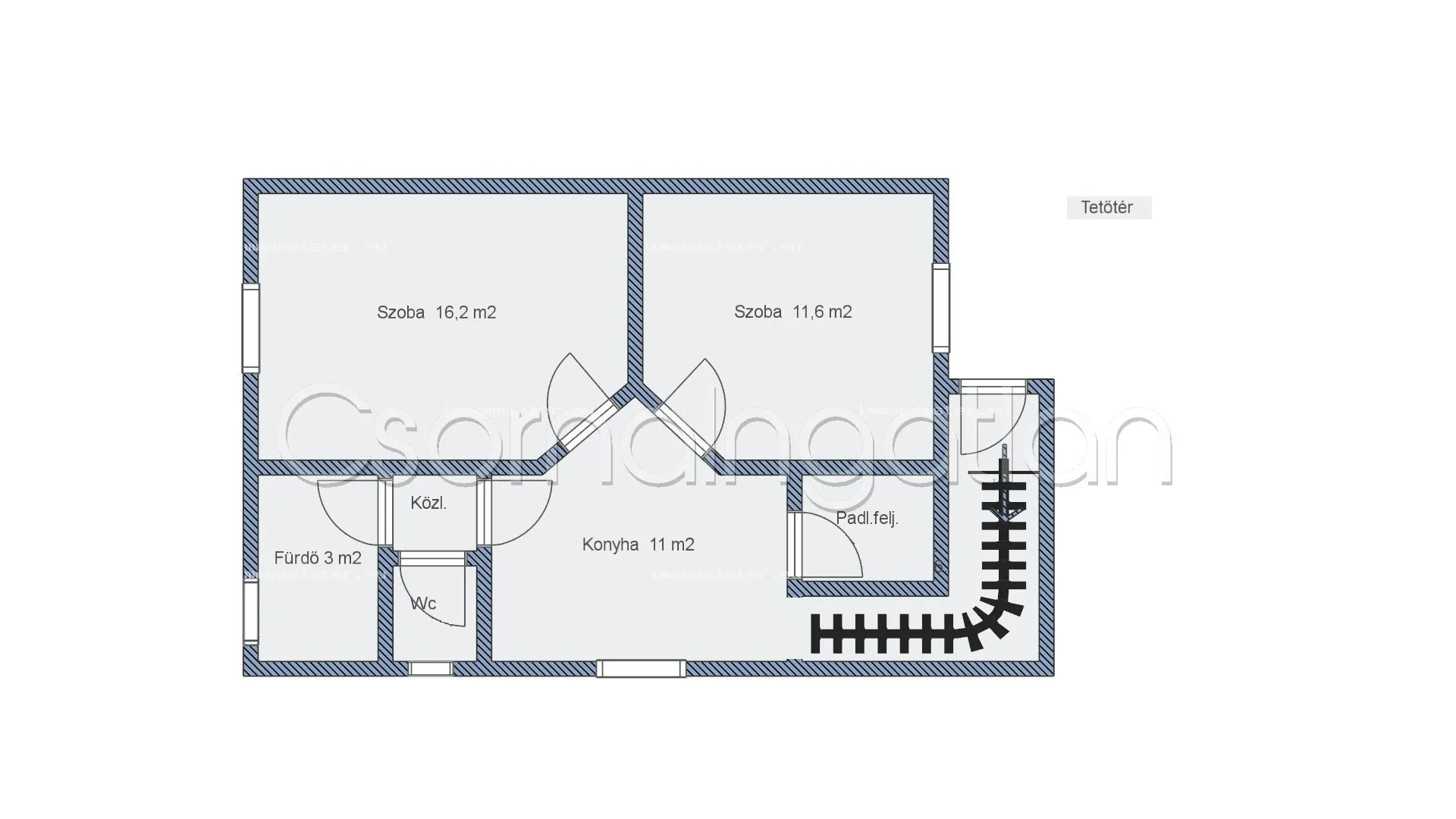
HELYISÉGEK

Földszint /I. lakrész/ 55 m2

- 2 szoba

- konyha + étkező

- kamra

- fürdőben zuhanykabin, külön helyiségben a toalett

- előszoba

- kazánház

- fedett terasz

 

Tetőtér /II. lakrész/ 45 m2

- 2 szoba

- konyha + étkező

- fürdőben zuhanyzó, külön helyiségben a toalett

 

MŰSZAKI JELLEMZŐK

- tetőtér beépítés 1998-ban

- téglaépítésű, beton alapos

- szigetelt

- hőszigetelt fa nyílászárók redőnnyel, szúnyoghálóval felszerelve

- fűtés vegyes központi kazánnal és gázcirkóval

- éjszakai áram

 

MELLÉKÉPÜLETEK

- garázs

- tárolók

 

TELEK

- 891 m2-es saját telekrész

- gyümölcsfák

 

FERTŐRÁKOS

A kb. 2400 fős település 10 km-re fekszik Soprontól, közvetlenül az osztrák határ mellett.

- egyike az UNESCO világörökség részét képező Fertő/Neusiedlersee kultúrtáj településeinek

- része a Fertő-Hanság Nemzeti Parknak

- érinti a Fertő körül épült kerékpárút

- a község határában kikötő, tóparti üdülőhely és strand található

- óvoda, általános iskola, posta, orvosi rendelő is megtalálható

Profile picture

Csorna Ingatlan

77 990 000 Ft

    Fertőrákos
    Állapot: Jó állapotú
    Falazat: Tégla
    Alapterület: 100m2
    Szoba: 4
    Fürdőszoba: 2
Utolsó frissítés
2025-05-19
Hirdetés létrehozva
2025-05-16