Haus zu Verkauf in Győrújbarát
Győrújbarát – Panorámás utcájában, új építésű, emeltszintű fűtéskész ikerház – 139,9 millió Ft
Győrújbarát egyik legkedveltebb, panorámás, csendes utcájában kínálok eladásra egy magas műszaki tartalommal kivitelezett, modern ikerházat.
A környék a település elit lakóövezete: nyugalom, igényes szomszédság, mégis pár perc alatt elérhető Győr.
Az ikerház egy kb. 1200 m²-es, déli tájolású telken épült, emeltszintű fűtéskész állapotban kerül átadásra, igény esetén kulcsrakész kialakítással is.
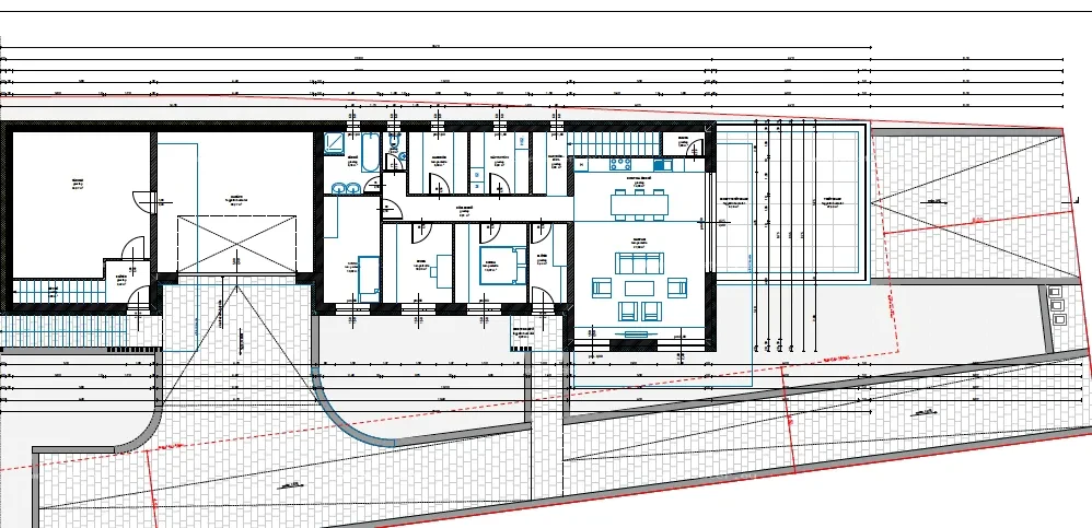
INGATLAN MÉRETEK
• Nettó lakótér: 114,89 m²
• Garázs: 36,89 m²
• Tároló: 40,71 m²
• Fedett tetőterasz: 8,18 m²
• Nagy panorámás tetőterasz: 27,53 m²
A tetőteraszokról tiszta időben messze a környező dombokig és erdős részekig ellátni, tökéletes hely naplementéhez és privát pihenéshez.
HELYISÉGELRENDEZÉS
A belső elosztás praktikus és átgondolt:
• tágas amerikai konyhás nappali nagy üvegfelületekkel
• 3 külön nyíló hálószoba
• 2 fürdőszoba
• spejz
• gardróbhelyiség
• külön tároló
• közvetlen teraszkapcsolat
A nagy méretű üvegfelületeknek és a korszerű nyílászáróknak köszönhetően egész nap világos és otthonos.
SZERKEZETI ÉS KIVITELEZÉSI MINŐSÉG
• 30 cm csiszolt kerámia falazat, kiváló hőtartó tulajdonság
• 10 cm csiszolt válaszfalazat
• masszív vasbeton födém
• esztétikus és korszerű zöldtetős lapostető
• garázs felett burkolt lapostető, terasz funkcióval
• 20 cm EPS 80 homlokzati szigetelés, színezéssel együtt
• igényes bádog szerkezet kialakítás
NYÍLÁSZÁRÓK
• Kömmerling márkájú, háromrétegű üvegezésű, modern ablakok
• redőny előkészítéssel, zárt tokos rendszerre
GÉPÉSZET / FŰTÉS
A gépészeti rendszer korszerű és energiatakarékos:
• teljes víz-, csatorna- és fűtésszerelés kialakítva
• hőszivattyús fűtési rendszer puffer tartállyal
• mindenhol padlófűtés
• 2 db klíma előkészítés
• tartályos beépíthető WC-k
• telken belüli esővíz-elvezetés szikkasztóba megoldva
VILLAMOS RENDEZÉS
• külső kapcsolószekrénytől kiépített lakáselosztó
• előkészített dugalj-, kapcsoló-, lámpa-, TV- és internet kiállások
• minden kiállás egyeztetett helyen, praktikus elrendezésben
A KÖRNYÉK
• exkluzív, rendezett, csendes lakóövezet
• a környező házak igényes, új építésű ingatlanok
• gyors megközelíthetőség Győr felé
• közel buszmegálló, iskola, óvoda, játszótér
(hivatkozási szám: M123170)
Győrújbarát egyik legkedveltebb, panorámás, csendes utcájában kínálok eladásra egy magas műszaki tartalommal kivitelezett, modern ikerházat.
A környék a település elit lakóövezete: nyugalom, igényes szomszédság, mégis pár perc alatt elérhető Győr.
Az ikerház egy kb. 1200 m²-es, déli tájolású telken épült, emeltszintű fűtéskész állapotban kerül átadásra, igény esetén kulcsrakész kialakítással is.
INGATLAN MÉRETEK
• Nettó lakótér: 114,89 m²
• Garázs: 36,89 m²
• Tároló: 40,71 m²
• Fedett tetőterasz: 8,18 m²
• Nagy panorámás tetőterasz: 27,53 m²
A tetőteraszokról tiszta időben messze a környező dombokig és erdős részekig ellátni, tökéletes hely naplementéhez és privát pihenéshez.
HELYISÉGELRENDEZÉS
A belső elosztás praktikus és átgondolt:
• tágas amerikai konyhás nappali nagy üvegfelületekkel
• 3 külön nyíló hálószoba
• 2 fürdőszoba
• spejz
• gardróbhelyiség
• külön tároló
• közvetlen teraszkapcsolat
A nagy méretű üvegfelületeknek és a korszerű nyílászáróknak köszönhetően egész nap világos és otthonos.
SZERKEZETI ÉS KIVITELEZÉSI MINŐSÉG
• 30 cm csiszolt kerámia falazat, kiváló hőtartó tulajdonság
• 10 cm csiszolt válaszfalazat
• masszív vasbeton födém
• esztétikus és korszerű zöldtetős lapostető
• garázs felett burkolt lapostető, terasz funkcióval
• 20 cm EPS 80 homlokzati szigetelés, színezéssel együtt
• igényes bádog szerkezet kialakítás
NYÍLÁSZÁRÓK
• Kömmerling márkájú, háromrétegű üvegezésű, modern ablakok
• redőny előkészítéssel, zárt tokos rendszerre
GÉPÉSZET / FŰTÉS
A gépészeti rendszer korszerű és energiatakarékos:
• teljes víz-, csatorna- és fűtésszerelés kialakítva
• hőszivattyús fűtési rendszer puffer tartállyal
• mindenhol padlófűtés
• 2 db klíma előkészítés
• tartályos beépíthető WC-k
• telken belüli esővíz-elvezetés szikkasztóba megoldva
VILLAMOS RENDEZÉS
• külső kapcsolószekrénytől kiépített lakáselosztó
• előkészített dugalj-, kapcsoló-, lámpa-, TV- és internet kiállások
• minden kiállás egyeztetett helyen, praktikus elrendezésben
A KÖRNYÉK
• exkluzív, rendezett, csendes lakóövezet
• a környező házak igényes, új építésű ingatlanok
• gyors megközelíthetőség Győr felé
• közel buszmegálló, iskola, óvoda, játszótér
(hivatkozási szám: M123170)
Vicsápi Beátrix
Buyer rating:
4.98 average based on 535 ratings.
Utolsó frissítés
2026-03-30
Hirdetés létrehozva
2025-11-12