Csorna - azonnal birtokba vehető összkomfortos ház eladó
Csorna központ közeli részén 65 m2-es családi ház 600 m2-es telken eladó.
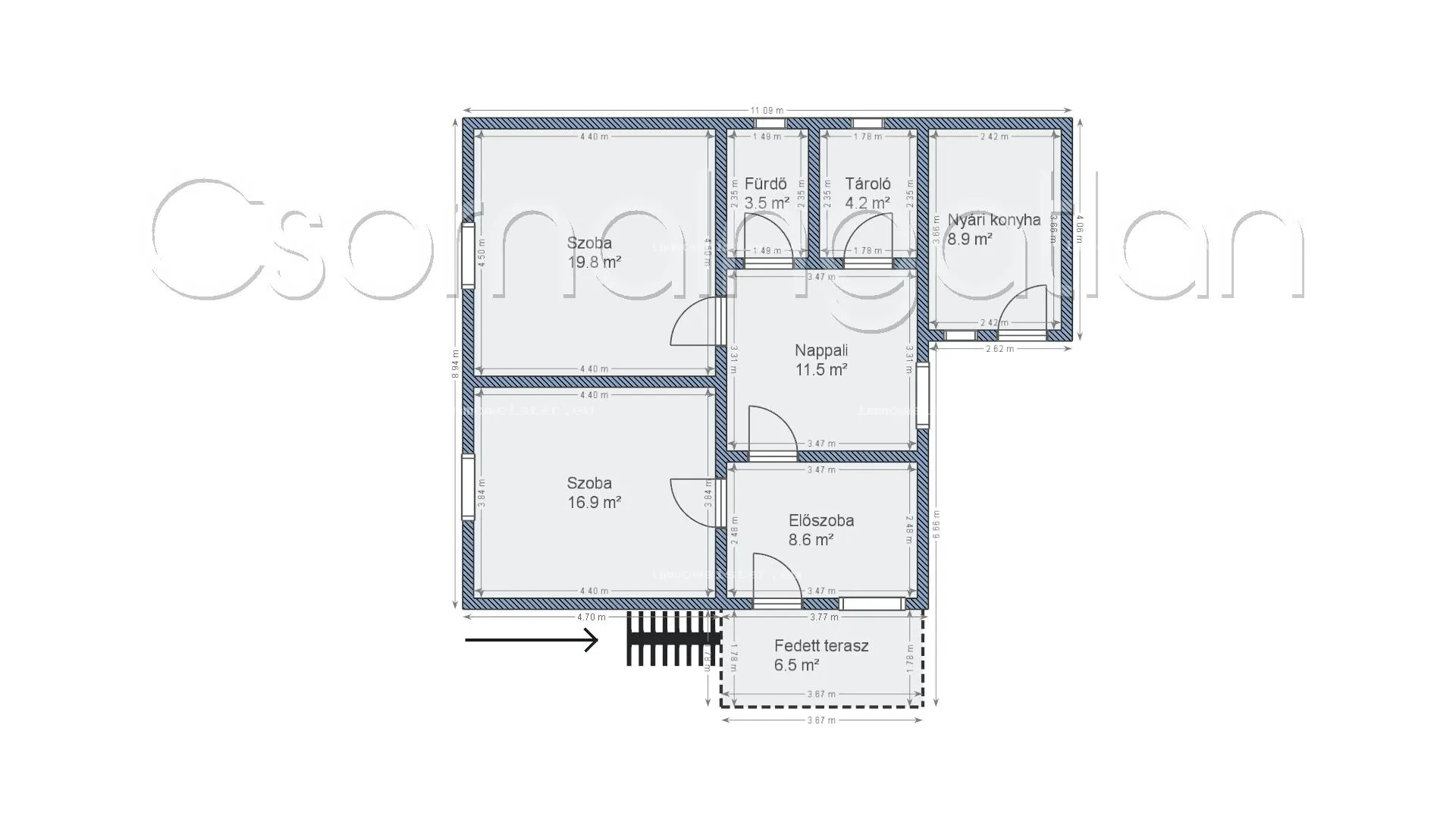
HELYISÉGEK
- 2 szoba
- konyha étkezővel
- előszoba
- nappali
- fürdő
Fedett terasz
- alatta pince
MŰSZAKI JELLEMZŐK
- téglaház
- hagyományos nyílászárók redőnnyel
- beton alap és födém
- fűtés gázközponti kazánnal
- meleg víz villanybojler által
MELLÉKÉPÜLETEK
- nyári konyha
- garázs
TELEK
- 600 m2
- körbekerített
- fúrt kút
FONTOS LEHET
- azonnal birtokba vehető
- tehermentes
CSORNA
A kb. 10.000 fős város az M85-ös gyorsforgalmi út által 30 perc alatt elérhető Győrből, illetve vasútvonalon is.
- bölcsőde, óvodák
- általános iskolák (római katolikus, művészeti, speciális, önkormányzati)
- gimnázium, szakközép iskolák
- Margit Kórház
- termálfürdő
- áruházláncok, boltok stb. helyben megtalálhatóak
 
                        
                         
                                                             
                                                             
                                                             
                                                             
                                                             
                                                             
                                                             
                                                             
                                                            