Levélen új építésű jelenleg félkész 100 nm földszintes családi ház eladó emeltszintű szerkezet és fűtéskészen eladó!
Új építésű családi ház eladó Levélen – az osztrák határ közelében! Jelenleg már félkész állapotban!!!
Idén költözhető!
Ára: 74 900 000,- Ft. 5 % Áfával, telekkel és emeltszintű szerkezet és fűtéskészen!
Kulcsrakész befejezés kérhető!
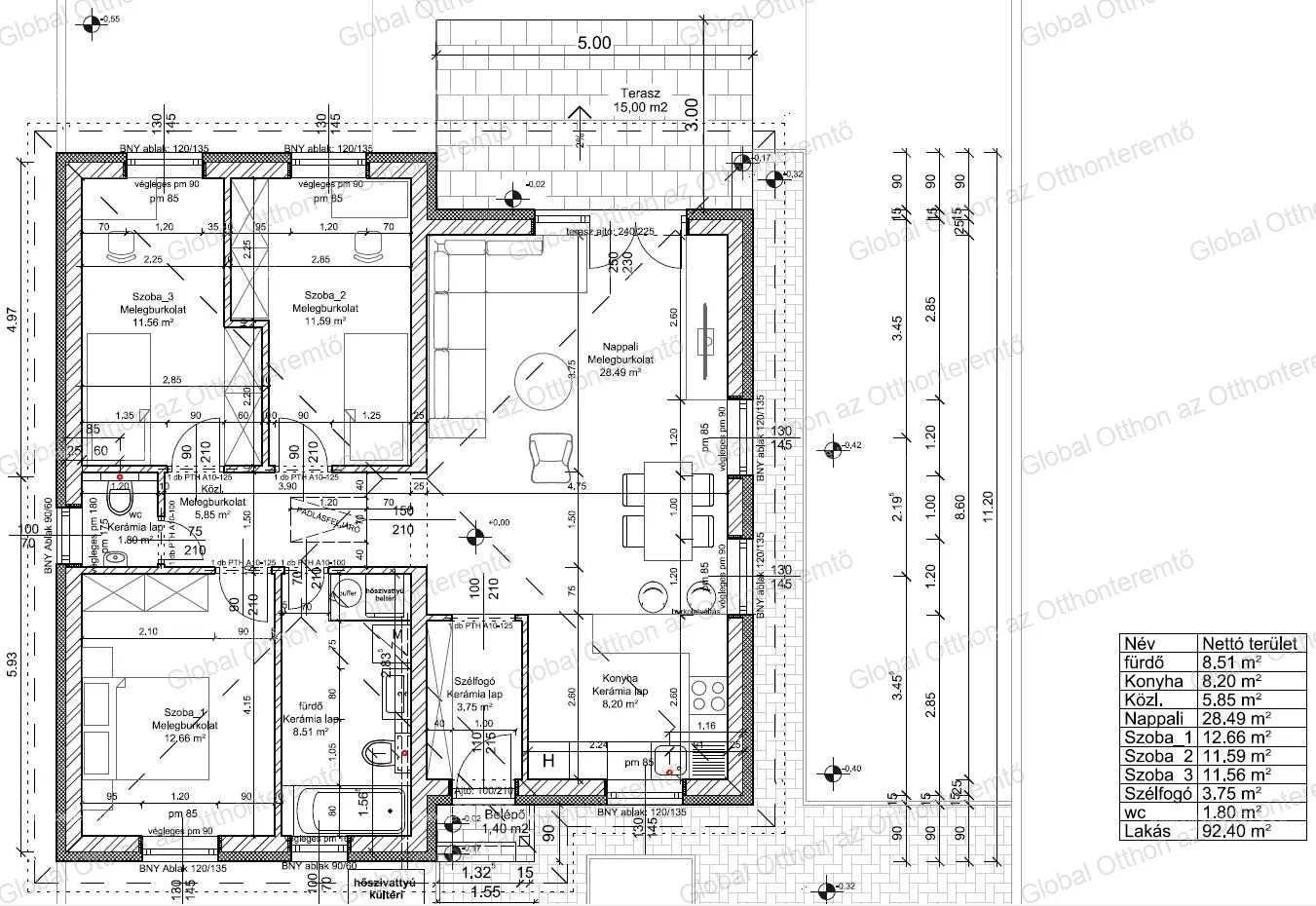
Levél csendes, rendezett részén, a hegyeshalmi osztrák határ közelében, önálló 400 m²-es telken kínálok megvételre egy új építésű családi házat.
Az ingatlan nettó 92,40 m² lakóterülettel rendelkezik, amelyhez tartozik egy 1,4 m²-es fedett belépő, valamint egy 15 m²-es, nappaliból nyíló terasz, amely kellemes kertkapcsolatot biztosít.
Helyiségek elrendezése
szélfogó / előtér
nappali – étkező
konyha
közlekedő
3 hálószoba
fürdőszoba
külön WC
A praktikus alaprajz ideális választás családok számára, kényelmes és jól használható életteret biztosít.
Műszaki tartalom
Az épület kivitelezése korszerű, minőségi anyagok felhasználásával történik:
Porotherm téglafalazat
monolit beton födém, amely nagyobb hőmegtartó tömeget biztosít
gerendavázas tetőszerkezet
Bramac tetőfólia és Bramac Reviva cserepezés
15 cm homlokzati polisztirol szigetelés
35 cm ásványgyapot födémszigetelés
A padláson kb. 30 m² járható, pakolható tárolófelület került kialakításra.
Nyílászárók
Kömmerling műanyag nyílászárók
3 rétegű üvegezés
meleg perem technológia
rejtett redőnytok, motoros redőny előkészítéssel
Fűtés és gépészet
A fűtést és a melegvíz-ellátást magas minőségű német Vaillant hőszivattyús rendszer biztosítja:
Vaillant aroTherm hőszivattyú
uniTower beltéri egység
padlófűtéses hőleadás
Igény esetén a műszaki tartalom gázkazán + hőszivattyús klímás rendszerre módosítható.
További műszaki elemek
klíma előcsövezés kiépítve
kérésre klíma felszerelés kulcsrakész átadáskor
fürdőszobában és WC-ben páratartalom-érzékelős ventilátoros elszívás
visszacsapó szeleppel ellátott szellőzés
Jelenlegi készültségi állapot
Az épület tető alatt van, a főbb szerkezeti munkák elkészültek:
Kömmerling nyílászárók beépítve
35 cm ásványgyapot födémszigetelés elkészült
padláson 30 m² járható tároló rész kialakítva
villamossági gégecsövezés elkészült
víz- és lefolyórendszer alapcsövezése elkészült
beépített WC tartályok elhelyezve
A fűtéskész állapot várhatóan kb. 2,5 hónapon belül elérhető.
Amennyiben érdekli az ingatlan, kérem keressen időpont egyeztetés céljából az alábbi elérhetőségeim bármelyikén.
Telefon: 06 30 491 7122 -es számon.
E-mail: toth.edit@globalotthon.hu
Irodánkban teljes körű díjmentes hitelügyintézéssel, szakmai segítségnyújtással várjuk!
Idén költözhető!
Ára: 74 900 000,- Ft. 5 % Áfával, telekkel és emeltszintű szerkezet és fűtéskészen!
Kulcsrakész befejezés kérhető!
Levél csendes, rendezett részén, a hegyeshalmi osztrák határ közelében, önálló 400 m²-es telken kínálok megvételre egy új építésű családi házat.
Az ingatlan nettó 92,40 m² lakóterülettel rendelkezik, amelyhez tartozik egy 1,4 m²-es fedett belépő, valamint egy 15 m²-es, nappaliból nyíló terasz, amely kellemes kertkapcsolatot biztosít.
Helyiségek elrendezése
szélfogó / előtér
nappali – étkező
konyha
közlekedő
3 hálószoba
fürdőszoba
külön WC
A praktikus alaprajz ideális választás családok számára, kényelmes és jól használható életteret biztosít.
Műszaki tartalom
Az épület kivitelezése korszerű, minőségi anyagok felhasználásával történik:
Porotherm téglafalazat
monolit beton födém, amely nagyobb hőmegtartó tömeget biztosít
gerendavázas tetőszerkezet
Bramac tetőfólia és Bramac Reviva cserepezés
15 cm homlokzati polisztirol szigetelés
35 cm ásványgyapot födémszigetelés
A padláson kb. 30 m² járható, pakolható tárolófelület került kialakításra.
Nyílászárók
Kömmerling műanyag nyílászárók
3 rétegű üvegezés
meleg perem technológia
rejtett redőnytok, motoros redőny előkészítéssel
Fűtés és gépészet
A fűtést és a melegvíz-ellátást magas minőségű német Vaillant hőszivattyús rendszer biztosítja:
Vaillant aroTherm hőszivattyú
uniTower beltéri egység
padlófűtéses hőleadás
Igény esetén a műszaki tartalom gázkazán + hőszivattyús klímás rendszerre módosítható.
További műszaki elemek
klíma előcsövezés kiépítve
kérésre klíma felszerelés kulcsrakész átadáskor
fürdőszobában és WC-ben páratartalom-érzékelős ventilátoros elszívás
visszacsapó szeleppel ellátott szellőzés
Jelenlegi készültségi állapot
Az épület tető alatt van, a főbb szerkezeti munkák elkészültek:
Kömmerling nyílászárók beépítve
35 cm ásványgyapot födémszigetelés elkészült
padláson 30 m² járható tároló rész kialakítva
villamossági gégecsövezés elkészült
víz- és lefolyórendszer alapcsövezése elkészült
beépített WC tartályok elhelyezve
A fűtéskész állapot várhatóan kb. 2,5 hónapon belül elérhető.
Amennyiben érdekli az ingatlan, kérem keressen időpont egyeztetés céljából az alábbi elérhetőségeim bármelyikén.
Telefon: 06 30 491 7122 -es számon.
E-mail: toth.edit@globalotthon.hu
Irodánkban teljes körű díjmentes hitelügyintézéssel, szakmai segítségnyújtással várjuk!
Global Otthon az Otthonteremtő
Tóth Edit
Buyer rating:
4.98 average based on 535 ratings.
Utolsó frissítés
2026-03-21
Hirdetés létrehozva
2026-03-21